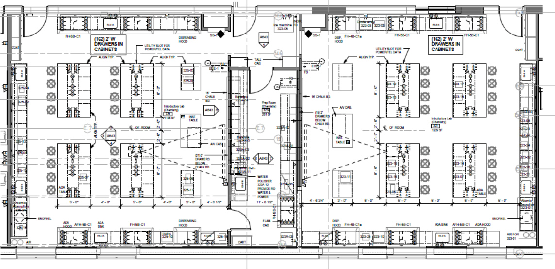
General Chemistry Teaching Labs

More details will follow as they become available.

Back to Third Floor plans